Používame cookies

Súbory cookie a ďalšie technológie sledovania používame na zlepšenie vášho zážitku z prehliadania našich webových stránok, na to, aby sme vám zobrazovali prispôsobený obsah a cielené reklamy, na analýzu návštevnosti našich webových stránok a na pochopenie toho, odkiaľ naši návštevníci prichádzajú. Viac info

 

Lukratívna komerčná budova v centre mesta Michalovce

Obec: Michalovce
Okres: Michalovce
Kraj: Košický kraj
Druh: Objekty
Typ: Predaj
Typ objektu: Komerčný objekt
Iné:
Dohodou

Popis nehnuteľnosti

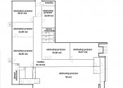
Ponúkame Vám na predaj lukratívnu komerčnú budovu nachádzajúcu sa v centre mesta Michalovce. V budove sa nachádza 7 obchodných priestorov, ktoré sú ideálne pre Vaše podnikateľské aktivity. Využite možnosť pracovať priamo v srdci mesta, skvelá lokalizácia pre Vašich klientov.

  • skvelá poloha budovy je ideálna pre Vaše podnikanie
  • nachádza sa vo frekventovanej lokalite s množstvom potenciálnych klientov
  • budova nachádzajúca sa na pozemku s výmerou 550 m2
  • celková výmera budovy je 429,71 m2
  • pozostáva zo 7 obchodných priestorov, kotolne, 2  denných miestností, chodby, skladových priestorov a 4 sociálnych zariadení
  • vykurovanie je zabezpečené centrálnym kúrením
  • hlavnou výhodou je strategická poloha priamo v centre mesta, s výbornou dostupnosťou a 4 obchodnými priestormi so vstupom priamo z ulice
  • budova sa nachádza na výborne viditeľnom mieste s vysokou fluktuáciou zákazníkov
  • v súčasnosti je využívaná na poskytovanie rôznych služieb
  • budova je pripravená na okamžité využívanie
  • jedinečná príležitosť pre Vaše podnikateľské aktivity!
  • výborná občianska vybavenosť, akú ponúka centrum mesta

 

Nemáte čas riešiť hypotekárny úver? V našej realitnej kancelárii Vám poradíme a poskytneme najvýhodnejšie riešenie!


AREA reality, s.r.o.
Kpt. Nálepku 20 /budova DOBREXU/ pri Poštovej banke
0915 868 636

Vlastnosti

Status:
aktívne
Vlastníctvo:
osobné
Úžitková plocha:
429.71 m2
Zastavaná plocha:
556 m2
Podlahová plocha:
429.71 m2
Stav:
úplne prerobený
Počet izieb:
7
Typ budovy:
skelet
Celková plocha:
556 m2
Inžinierske siete:
áno
Voda:
áno
Elektrika:
áno
Plyn:
áno
Kanalizácia:
áno
Voda - na pozemku:
áno
Elektrika - na pozemku:
áno
Plyn - na pozemku:
áno
Kanalizácia - na pozemku - kanalizácia:
áno
Vykurovanie - centrálne:
áno

Pozrieť na mape

Maklér

PhDr. Renáta Bajuszová

konateľ spoločnosti, maklér

  • lrm

Radi Vám poradíme

Podobné nehnuteľnosti